Каталог / Оборудование из Китая / Производственные линии для приготовления вафель
Производственные линии для приготовления вафель
Автоматическая производственная линия для приготовления вафель спроектирована и произведена таким образом, чтобы вобрать в себя все лучшее от домашнего производства и перенять опыт лучших иностранных производителей. Данная производственная линия имеет следующие положительные качества: небольшой размер, высокая производительность, низкое энергопотребление. простота в обслуживании и эксплуатации, экологичность.
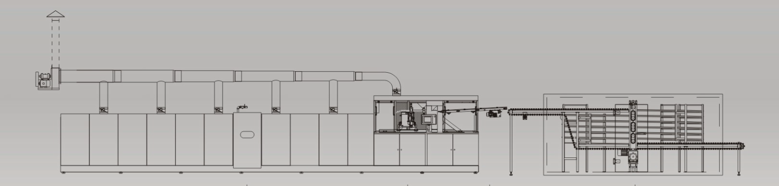
Чертеж автоматической производственной линии для приготовления вафель
Туннельная пекарная печь
1) Печь оснащена двойным изоляционным слоем. Это делает нагрев внутреннего пространства печи более равномерным и эффективным. Внешние механические части печи имеют длинный срок службы.
Система управления печи оснащена цветным сенсорным экраном производства Siemens или Mitsubishi. На нем отображается скорость конвейера, температура печи, статус механических узлов, объем теста, управление поджигом.
2) Компоненты газовой системы печи комплектуются товарами как домашнего, так и иностранного производства: подшипники линии и высокотемпературные подшипники сделаны немецкой компанией SKF, моторы произведены компанией SEW.
3) Под пекарной печи сделан из серого литейного чугуна, который имеет длинный срок службы, обладает высокими температурными качествами, что позволяет создавать однородные вафельные листы. В то же время система оснащена системой удаления отходов
4) Клапан нулевого давления японского производства.
Диапазон температур: в нормальном состоянии до 180°С (можно настроить)
Размеры пода печи: 470*350 мм, 500*350 мм (по выбору)
Производительность: 50 - 60 грамм вафель (можно настроить)
Рама печи: сталь GB
Листовой метал печи и дымохода: нержавеющая сталь 304
Рельсовые направляющие :45# сталь холодной вытяжки
Материал теплоизоляции: кремниевая изоляционная доска
Электрическое оборудование:
10,4 дюймовый цветной сенсорный экран производства японской компании Mitsubishi
Мотор: SEW
Подшипники: SKF
Цилиндр: Festo
Переключатель: Schneider
ПЛК: Mirsubishi
Кодировщик; Delta
Частотный преобразователь; Danfoss
Бесконтактный датчик; Roko
Мощность; 13 kWt
Охлаждающая башня
Охлаждающая башня обеспечивает воздушное охлаждение вафельного листа перед этапом намазки крема. Низкая температура предотвращает возникновение ломкости вафельных листов, что позволяет избежать повреждения листа в процессе намазки. Конвейерная лента работает в таком же темпе как и пекарная печь, что уменьшает расстояние, на которое необходимо транспортировать вафельный лист и увеличивает время воздушного охлаждения. Конструкция в виде моста обеспечивает удобство прохода для работников.
Материал и технические характеристики
Металлическая конструкция и металлическая конвейерная цепь: нержавеющая сталь 304
Конвейерная лента: пищевой полиуретан (Ammeraal Beltech)
Мотор: SEW
Мощность: 0,55 кВт
Размеры: 2600*1050*2430 мм
Машина для сбора листов
При помощи двух фотоэлектрических переключателей, расположенных на обоих краях конвейерной ленты, происходит контроль качества вафельных листов. В соответствие с полученными данными. машина самостоятельно выявит бракованные вафельные листы и отправит их вниз в отсек для хранения брака
Материал и технические характеристики
Рама: нержавеющая сталь 304
Металлическая пластина: нержавеющая сталь 304
Конвейерная лента: полиуретан
Мотор: SEW
Мощность: 0,18 кВт
Давление сжатого воздуха: 4 кг/см2
Габарит6 2200мм*1060мм*840мм
Машина для намазки крема
Данная машина используется для нанесения крема на вафлю. Оборудование подходит для использования с различными материалами, например, кремом, шоколадном, сырным соусом. Ролик для нанесения крема равномерно распределяет материал на поверхности вафельного листа. Толщина нанесенного крема может варьироваться. Бункер для крема имеет устройства для нагрева, что позволяет поддерживать постоянную температуру крема. Клиента может выбрать 2-3 головки для намазки крема по своему желанию
1) Конвейерная лента
2) Ролик для нанесения крема с устройством нагрева
3) Вращающееся устройства для наслаивания может создавать вафли от 2 до 8 слоев
4) Машина оснащена системой оповещения о превышении температуры и возникновении сигнала тревоги
5) Автоматическая программа управления ПЛК
6) Человеко-машинный интерфейс обеспечивает простоту эксплуатации
7) Производительность: 45 шт/мин
Материал и технические характеристики
Рама: GB сталь
Металлическая пластина: нержавеющая сталь 304
Конвейер: полиуретановая лента (Ammeraal Beltech)
Мотор и редуктор: SEW
Цилиндр: Festo
Частотный преобразователь: Danfoss
Панель управления: Mitsubishi
Кодировщик: Mitsubishi
Габарит: 2485*1200*1730 мм
Общая мощность: 2,92 кВт
Вертикальный охлаждающий шкаф
Данное оборудование используется для охлаждения вафель, начиненных кремом. Охлаждение значительно влияет на качество вафель, вкус и срок годности, поэтому данная машина является важной частью производственной цепочки во время приготовления качественных вафель. Машина сделана из нержавеющей стали 304 и соответствует стандартам гигиеничности пищевого производства.
Материал и технические характеристики
Охлаждающий шкаф: температура входящего воздуха 6-10°С (температура цеха 22°С)
Влажность охлаждающего шкафа: ≤55 %(температура цеха 22°С)
Рама: сталь GB
Металлическая пластина, суппорт конвейера: нержавеющая сталь 304
Компрессор: Copeland
Панель управления: Цифровой термостат с микрокомпьютером
Материал теплоизоляционного слоя: 150мм полиуретан-композитная пластина из нержавеющей стали
Система охлаждения: водяное охлаждение\воздушное охлаждение
Мощность охлаждение: 10\20 НР
Электрические компоненты: Schneider
Мотор: SEW
Подшипники: SKF
Мощность мотора: 2,85 кВт
Габарит: 3700*1200*2612 мм
100м спиральный охлаждающий шкаф
Температура вафельного листа составляет 35 °С, когда он попадает на попадает на башенный охлаждающий конвейер. В процессе охлаждения температура опускается до 10°С во время хода конвейера. Температура внутри шкафа является равномерной.
Материал и технические характеристики:
Мощнось мотора: 4 кВт
Мощность охлаждения: 30 НР
Габарит: 6000*4800*2500 мм
Машина для нарезки вафель
Машина для нарезки использует ПЛК для автоматизации производства и хорошо подходит для использования с конвейерами. Режущий нож или леску можно легко поменять. Систему нарезки можно легко настраивать в соответствии со своими потребностями. В качестве защитного устройства используется экран из органического стекла.
Материал и технические характеристики:
Рама: Сталь GB
Все поверхности, контактирующие с продуктом сделаны из нержавеющей стали 304
Мотор: SEW
Кодировщик: Siemens
Переключатель: Schneider
Мощность: 0,75 кВт
Режущий орган: нож или режущая проволока
Производительность: 15 шт\мин
Габарит: 1545*2100*1100 мм
Разделитель потоков

Устройство предназначено для разделения нарезанных вафель и дальнейшей подачи изделия на станцию глазирования шоколадом или упаковщик. Специальная рука разделяет потоки вафель и проталкивает их по направляющим.
Миксер для крема

Данная машина применяется для перемешивания крема. Перемешивание в двух направлениях делает крем однородным и без твердых включений. Автоматическая система подачи крема доступна по желанию клиента
Материал и технические характеристики:
Рама: Сталь GB
Металлическая пластина: нержавеющая сталь 304
Двухслойная емкость для перемешивания: нержавеющая сталь 304
Лопатка: нержавеющая сталь 304
Производительность: 300 кг
Объем: 200 л
Мотор: SEW
Мощность: 5,05 кг
Габарит: 1700*800*1600 мм
Тестомес

Данная машина используется для приготовления теста для вафель. Машина сама может закончить замес к установленному времени и передать тесто в емкость для хранения. Машина оснащена количественной системой подачи воды, панелью управления и автоматической системой подачи теста
Материал и технические характеристики:
Рама: нержавеющая сталь 304
Металлическая пластина: нержавеющая сталь 304
Объем замеса: 235 л
Объем хранения: 235 л
Мотор: SEW
Подшипники: SKF
Переключатель: Schneider
Насос: 4м3\ч, 0,75 кВт*2
Мощность: 5,5 кВт
Габарит: 1860*900*1600 мм
Машина для утилизации

Используется для уничтожения вафли для дальнейшей переработки
Материал и технические характеристики:
Рама: сталь GB
Внешняя поверхность емкости: нержавеющая сталь 304
Орган для утилизации: нержавеющая сталь 304
Мотор: SEW
Мощность: 3,0 кВт
Габарит: 690*610*1250 мм
Линия для приготовления мягких вафель

Материал и технические характеристики
Производительность: 4-8 тонн\ день
Процент качественного продукта: 98%
Габарит пода: 470*325 мм
Линия для приготовления вафельных шариков

Материал и технические характеристики
Производительность: 8 тонн\день
Мощность моторов: 63,0 кВт (380В, 50 Гц)
Процент качественного продукта: ≥98%
Габарит пода: 470*325 мм
Габарит линии: 43,2*5,0*2,5 м
Масса линии: 20 тонн
Линия для приготовления пустотелых вафель

Материал и технические характеристики:
Производительность: 10,0 тонн\день
Полная мощность: 60,0 кВт (380В, 50 Гц)
Процент качественного продукта: ≥98%
Габарит пода: 470*325 мм
Габарит линии: 51,4*5,0*2,4 м
Масса линии: 24,5 тонн
Машина для глазирования шоколадом

Линия может быть разделена на два этапа: этап глазирования и этап охлаждения. Машина для глазирования используется для покрытия вафли шоколадом. Машина оснащена автоматической системой управления температурой для нагрева, системой циркуляции горячей воды, насосной группой для шоколада. Охлаждающий тоннель оснащен устройством охлаждения и системой вентилирования. Система отличается компактностью, продуманной конструкцией, стабильностью работы, простотой в эксплуатации, безопасностью и надежностью, простотой в техническом обслуживании и ремонте.
Материал и технические характеристики:
Материал рамы: нержавеющая сталь 304
Ширина ленты: 600/900 мм (зависит от желания покупателя)
Материал ленты: Ammeraal Beltech
Сетчатый конвейер: нержавеющая сталь 304
Охлаждение: 20НР
Хладагент: R22
Температура охлаждающего тоннеля: 0-5 °С
Габарит: 23032*1500*1865 мм
Мотор; SEW
Мощность мотора: 5,995 кВт (380В 50Гц)
Мощность нагрева: 6,6 кВт
Итоговая мощность: 12,595
Измельчитель для шоколада

Данная машина используется для измельчения шоколада, оснащена системой электрического нагрева и автоматическим управлением температурой. Это идеальная машина для работы с шоколадом.
Материал и технические характеристики
Рама: нержавеющая сталь 304
Корпус резервуара: нержавеющая сталь 304
Объем: 500кг
Мощность основного мотора: 15 кВт
Тонкость помола: 20*25 ų m
Максимальная скорость: 33 об\мин
Габарит: 2500*1550*1370мм
Масса: 2800кг
Емкость для хранения шоколада

Емкость для хранения автоматически подает материал в машину для глазирования шоколадом. Емкость представляет собой резервуар с двойными стенками, оснащенный 6 метровыми трубами с двойными стенками.
Материал и технические характеристики:
Труба с двойными стенками: нержавеющая сталь 304
Объем резервуара: 300л
Насос: Germay Lobe
Габарит: 1200*900*1900мм
Мотор; SEW
Мощность: 3,5 кВт
Система автоматической фасовки и упаковки

Данная машина применяется для автоматической упаковки различных видов вафель. Возможна упаковка в различные виды материалов по желанию клиента